最新公告:
钢制闸门、钢制闸门厂家、河北钢制闸门、卷扬式启闭机、卷扬启闭机厂家、河北卷扬启闭机
全国咨询热线:
15833679666
网站地图
RSS订阅
返回首页
走进丰泰
公司简介
联系我们
安装指南
产品中心
铸铁闸门系列
钢制闸门系列
钢坝闸门 翻板闸门 景观闸门
叠梁门
木闸门
拍门
水利冲洗门
液动限流闸门
螺杆式启闭机系列
卷扬式启闭机系列
复合材料闸门
清污机、格栅、格网
输送机
一体化泵站
橡胶止水系列
液压启闭机系列
新闻中心
公司新闻
行业动态
客户案例
安装指南
启闭机安装指南
闸门安装指南
各种拍门安装指南
清污机安装指南
输送机
技术参数
螺杆式启闭机
卷扬式启闭机
铸铁闸门
钢制闸门
拍门系列
回转式格栅清污机
回转式耙齿清污机
移动抓斗清污机
网蓖式清污机
转鼓式清污机
输送机
格栅、格网系列
橡胶止水
叠梁门
联系我们
丰泰产品系列
products list
铸铁闸门系列
铸铁镶铜闸门
铸铁方闸门
铸铁圆闸门
单止水铸铁闸门
双止水铸铁闸门
扇形闸门
钢制闸门系列
钢坝闸门 翻板闸门 景观闸门
叠梁门
木闸门
拍门
铸铁拍门
钢制拍门
玻璃钢拍门
方拍门
节能拍门
复合材料拍门
水利冲洗门
液动限流闸门
螺杆式启闭机系列
手电两用螺杆启闭机
手动螺杆启闭机
双吊螺杆启闭机
电装启闭机
太阳能螺杆式启闭机
斜拉螺杆启闭机
柴油机螺杆启闭机
卷扬式启闭机系列
复合材料闸门
清污机、格栅、格网
回转式耙齿清污机
回转式格栅清污机
移动抓斗式清污机
网蓖式清污机
钢丝绳清污机
转鼓清污机
粉碎型格栅
格网
格栅
输送机
皮带输送机
无轴螺旋输送机
无轴螺旋压榨机
一体化泵站
橡胶止水系列
液压启闭机系列
联系我们
联系人:焦经理
手机:15833679666
电话:0319-4785981
传真:0319-4785981
邮箱:xhftsg@163.com
QQ:760096386
850468771
微信:han13633194893
网址:www.gzzhamen.com
地址:河北省新河县开发区
产品展示
当前位置:
产品展示
>
钢制闸门系列
平板闸门
所属分类:钢制闸门系列
发布日期:2016-9-30
浏览:次
电 话:
0319-4785981
手 机:
15833679666(同微信)
手 机:
13633194893(同微信)
联系人:焦经理
分享此产品:
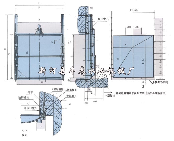
钢闸门是给排水工程、水利、水电工程中常用的拦水、止水设备,由门框、闸板、密封圈及可调式锲型压块等部件组成。钢闸门久用磨损后,其密封面可通过锲型压块的调整来保证正常工作。 由于渠道内经常有水的,所以所闸门一般均为开启状态,只是程度不同。当下游渠道需要检修而要求无水时,将后浮箱闸门上游的平板检修闸门关闭使其不漏水,即可完全断流。
上一个产品:
机门一体钢制闸门
下一个产品:
PM-DN1.5米铸铁拍门
你可能感兴趣的信息:
格栅清污机、循环式格栅清污机=新河县丰泰水工机械厂!
QPQ/QPK卷扬启闭机安装注意事项
钢制闸门常用防腐方法、丰泰水工铸铁闸门防腐处理、钢制闸门防腐
丰泰侧开式拍门介绍
QPK卷扬启闭机介绍
钢制闸门橡胶止水带、止水P型橡胶密封条的具体注意事项
卷扬式启闭机厂家*卷扬启闭机介绍
丰泰水工主导产品介绍
铸铁镶铜圆闸门工作原理、铸铁镶铜方闸门特点、附壁式铸铁镶铜闸
铸铁调节堰门分类、调节堰门结构、调节堰门工作原理
158-3367-9666
xhftsg@163.com